
スタイル02
交差するダブル片流れ屋根の個性派スタイル
スタイル02は、交差する屋根が特徴の変則スタイル。背が高く細長のデザインは、庭の限られたスペースにもスッキリ収まり、物置としてはもちろん、趣味の工房や自転車ガレージとしても最適。標準装備のウッドデッキが、外との繋がりをさりげなく演出します。お好みのカラーでペイントすれば、景色に溶け込むあなただけの特別な1棟に。
※屋根材は25年耐久の製品です。オプションで40年耐久のアスファルトシングルもご用意しています。また、屋根材は国土交通省より防火認定を受けており、そのため防火指定区域でも使用が可能です。
店頭お渡し価格(税込):847,800円~
※上記金額は長野県から北海道までの運送代をを含んでいます。
※小屋サイズにより価格が変わります。


自分のアイディアで彩る、あなただけの小屋。
キットは未塗装なので、組み立てると天然木の小屋が完成します。そのため、お好みの色でカスタマイズできます。外壁の色によって様々な表情を楽しめる小屋。自由に塗装して、あなただけの小屋を作り上げることができます。デッキの拡張などDIYに挑戦し、使いやすさをさらに向上させてみてはいかがでしょうか。これが木製製品の魅力です。
背が高いので、空間を有効活用できます。
例えば、ロフトを設置してハシゴを壁に取り付けると収容量が増えるので使い勝手も良くなります。
あなたの趣味や用途に応じて自由にアレンジするのも楽しいですね。

キットでご購入の場合はこのような荷姿になり、サイズやオプションの追加などで荷物の高さや重量、配送料が変わります。また、弊社店舗でのお引取りが基本となります。
※写真は6×9サイズ。

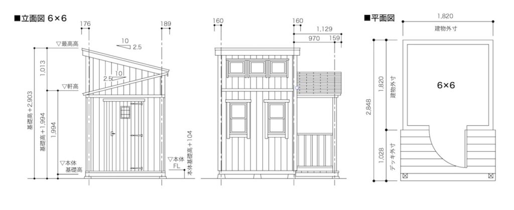
| 建物外寸法 | 幅1820×奥行2848(うち室内部奥行1820) | 最小サイズ |
| 面積 | 室内部1坪(3.3㎡)・全体1.6坪(5.2㎡) | 最小サイズ |
| 外壁材 | 福杉チャネルサイディング | |
| 躯体 | 2×4フレーミング | |
| 内装 | 構造材顕し | |
| 屋根葺材 | アスファルトシングル | |
| キットサイズ | 6×6フィート/1820×2848(部屋1820+デッキ1028)・5.2㎡・1.6坪 6×9フィート/1820×3758(部屋2730+デッキ1028)・6.8㎡・2.1坪 6×12フィート/1820×4668(部屋3640+デッキ1028)・8.5㎡・2.6坪 | |
| スパン延長 | 可能 | |
| ドア位置変更 | 不可 |



注意点:
※製品は無塗装です。
※ドア位置の変更はできません。
※屋根材の色を4色からお選びいただけます。
※キット価格には「床材」と「屋根材」が含まれております。
※写真の外壁の色はペンキ塗付したものです。※塗装ペンキをご用意下さい。
※角窓・ドアの小窓・アイアン格子はオプションです。
※写真の小物は撮影用のためキットには含まれておりません。
※ご不明な点はお気軽にお問い合わせください。
